Если цена в объявлении изменится, мы сразу сообщим вам об этом на электронную почту.
Нажимая «Подписаться», вы соглашаетесь с правилами.
продам дом, Труда, 106 380 000 ₽
11 окт
Дата публикации объявления
Обн. 4 апр
Дата обновления объявления
2
Количество просмотров (+ просмотры за сегодня)
43 401 ₽/м²
Чистая продажа
Термин "Чистая продажа" означает, что в квартире никто не прописан или
есть куда выписаться и вывезти вещи. Это лучший вариант для покупателя.
Вероятность срыва сделки минимальна.
Этажей1
Площадь участка31 сотка
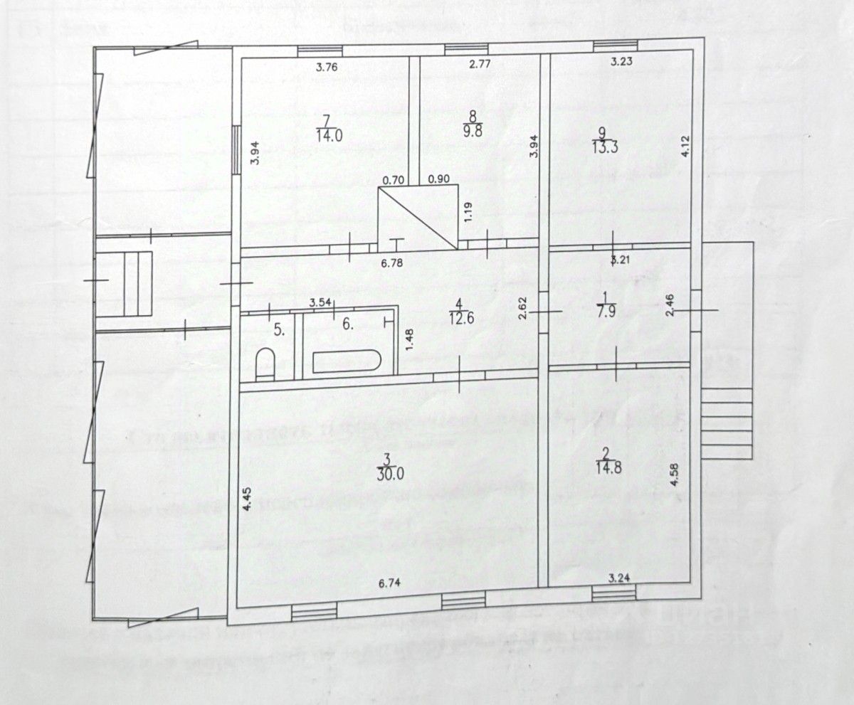
Общая площадь147 м2
Материал домадерево
ЭлектричествоЕсть
**Прекрасный дом в д. Барановщина - ваш идеальный уголок природы!**
Предлагаем вашему вниманию уютный и просторный дом, расположенный по адресу: Кировская область, Куменский район, д. Барановщина, ул. Труда, 10 ( 50 км от города Кирова). Этот объект с юридическим статусом ИЖС станет идеальным местом для жизни и отдыха в окружении природы.
*Особенности дома:* - Общая площадь 147 кв. м, жилая 67.9 кв. м, 4 просторные комнаты (размеры: 9.8 / 13.3 / 14.8 / 30 кв. м) и уютная кухня площадью 14 кв. м станет местом притяжения всей семьи. -дом одноэтажный, построен в 2006 году, с косметическим ремонтом, что позволит вам сразу же начать его обживать.
**Прекрасный дом в д. Барановщина - ваш идеальный уголок природы!**
Предлагаем вашему вниманию уютный и просторный дом, расположенный по адресу: Кировская область, Куменский район, д. Барановщина, ул. Труда, 10 ( 50 км от города Кирова). Этот объект с юридическим статусом ИЖС станет идеальным местом для жизни и отдыха в окружении природы.
*Особенности дома:* - Общая площадь 147 кв. м, жилая 67.9 кв. м, 4 просторные комнаты (размеры: 9.8 / 13.3 / 14.8 / 30 кв. м) и уютная кухня площадью 14 кв. м станет местом притяжения всей семьи. -дом одноэтажный, построен в 2006 году, с косметическим ремонтом, что позволит вам сразу же начать его обживать. - Крепкий блочный фундамент, стены из качественного бруса и крыша из металла обеспечивают надежность и долговечность. Русская печь, паровое отопление с радиаторами по всему дому всё для вашего комфорта. Раздельный теплый санузел, водонагреватель. - Просторная веранда с двумя комнатами, современная, построенная по технологии каркасного строения, электрическое отопление.
Участок площадью 31 сотка полностью разработан и ухожен, а хороший подъезд позволит вам с легкостью добраться до дома. Площадка для парковки включает встроенный гараж на три машины с смотровой ямой - идеальное решение для автолюбителей!
**Комфорт и уют в каждом углу!** В доме предусмотрены все удобства: централизованная канализация, собственная скважина для водоснабжения и бойлер для горячей воды. Окна в доме пластиковые стеклопакеты, что обеспечивает отличную тепло- и шумоизоляцию.
На ухоженном участке растут плодовые и ягодные деревья, такие как облепиха, смородина, боярышник, черноплодная рябина и калина. Овощные и ягодные грядки из клубники, а также декоративные деревья создают уютную атмосферу и радуют глаз в любой сезон.
Не упустите возможность стать владельцем этого замечательного дома в живописном месте, всего в 3 км от Нижне-ивкино. В соседних домах очень хорошие соседи, доброжелательные. Школа и детский садик в Нижне-Ивкино. Магазин и остановка близко от дома. Записывайтесь на просмотр и окунитесь в атмосферу комфорта и спокойствия!
Документы подготовлены, готовы к продаже. Продажа в связи с переездом.