Таунхаус, Севастопольская Показать на карте
Нововятский район
Киров
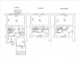
Арт. 93533061. ** В продаже таунхаус в ЖК ''Васильки'', по адресу: город Киров, мкр Радужный, улица Севастопольская. Год постройки - 2016, в доме всего 8 квартир.** Особенности планировки: общая площадь: 105 кв.м., жилая: 60 кв.м. Планировка квартиры предполагает: На 1 этаже: при входе в дом: теплый тамбур: 5 кв.м., просторный холл: 15 кв.м., кухня-гостиная: 19 кв.м. с отдельным выходом из квартиры в общий, закрытый двор на 5 таунхаусов, огороженный красивым металлическим заборчиком, кладовая - 2 кв.м., санузел (совмещен). На 2 этаже: большая спальня - 19 кв.м., холл, санузел, сауна, кладовая - 5 кв.м. На 3 этаже: две просторные комнаты - 19 кв.м. и 13 кв.м., холл. Есть гараж (3*5) и собственное парковочное машиноместо у крыльца дома.** Особенности ремонта: потолки - натяжные, качественный пол - стяжка, керамическая плитка и пробковое покрытие. Окна - пластиковые стеклопакеты. Санузлы - керамическая плитка. Кухня оборудована гарнитуром. Конструктив лестницы на 2 и 3 этажи - металлическая конструкция + дерево, ограждение лестницы - металлические перила.** Особенности проживания: водоснабжение, канализация - центральные. Отопление - двухконтурный газовый котел, что дает полную независимость от отключений горячей воды, а также графика включения отопления (можно использовать круглый год). Кроме того, это существенно снижает коммунальные платежи. Общие насаждения, двор без машин, закрытая территория.** Преимущества микрорайона - абсолютная тишина, в отдалении от дороги. ЖК ''Васильки'' - уютный, жилой комплекс со своей сложившейся инфраструктурой, расположенный в непосредственной близости от мкр Радужный. Разнообразные современные детские и спортивные площадки, многочисленные зоны отдыха, тропа здоровья для прогулок летом и зимой. Всего в 5 минутах езды находится Дендрологический парк и Нововятский район города Кирова. В пешей доступности детские сады, школа 74 с углубленным изучением отдельных предметов и бассейном.** Примем в оплату ваше жильё. Обеспечим своим клиентам скидки к ставке по ипотеке. Официальный партнёр всех банков. Возможно использовать любые сертификаты и материнский капитал. Собственники совершеннолетние, долгов нет.
105 м2
3 этажа
- Показать контакты
- Добавить в избранное
105 м2
3 этажа
13 200 000
125 714 /м2
