logo
N1.RU — новая улучшенная версия Е1.Недвижимость
Чтобы вернуться на старый сайт Е1.Недвижимость, перейдите по ссылке в нижней части сайта N1.RU
  • Продажа
  • Аренда
  • Новостройки
  • Журнал
  • Компании
  • Шаблоны документов
  • Налоговый вычет
  • Еще
  • Личный кабинет
    • Регистрация на Циан
    • Киров
  • Добавить объявление
Тип недвижимости
Киров
Поиск в любом из этих мест
Ленинский район, Киров
  • Район и микрорайон
Количество комнат
Цена
  1. Недвижимость в Кирове
  2. Продажа
  3. Квартиры
  4. Новостройки
  5. 2-комнатные
  6. Ленинский район
  7. 224 объявления

Продажа двухкомнатных квартир в Ленинском районе районе в Кирове

За все время
Сортировка по умолчанию
СпискомСписком
ТаблицейТаблицей
На картеНа карте
Открыть поиск по карте

По вашему запросу объявлений не найдено

1/10
2-к, Мелькомбинатовский проезд, 3 Показать на карте
Ленинский район
Киров
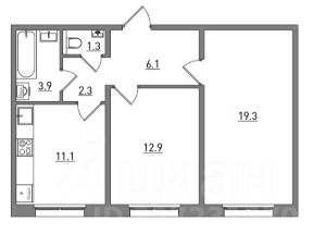
2-комнатная, 58.9 м², 218 по адресу Мелькомбинатовский, 3 Тип дома: Монолит. Жилой комплекс ''Видный''Преимущества покупки квартиры в новостройке напрямую от застройщика КСМ: Работаем с обновлённой семейной ипотекойРассрочка 0% от застройщика. Есть ограничения, подробности уточняйте в отделе продаж.Ипотека без удорожанияМатеринский капиталТрейд-инВоенная ипотекаIT-ипотекадома в районах с развитой инфраструктурой: с безопасными детскими площадками, парковками, зонами для спорта и отдыха, магазинами, кружками, детский сад и школа - в шаговой доступности, удобная планировка, в квартире никто не жил, продуманные и комфортные подъезды с колясочными, есть варианты с готовой отделкой в приятных светлых тонах и квартиры под отделку - оставляем пространство для вашей фантазии по дизайну квартиры, полностью прозрачная и безопасная сделка бесплатное юридическое сопровождение стоимость от застройщика без посредников
58 м2
10 / 17 этаж
Кирпич - монолит
  • Показать контакты
  • Добавить в избранное
58 м2
10 / 17 этаж
Кирпич - монолит
9 188 400 
156 000 /м2
Новостройка,
III-2027
1/6
2-к, Капитана Дорофеева, 22 Показать на карте
Ленинский район
Киров
2-комнатная, 40.1 м², 42 по адресу Дорофеева, 22 Тип дома: Кирпич. Жилой комплекс ''Лайф''Преимущества покупки квартиры в новостройке напрямую от застройщика КСМ: Работаем с обновлённой семейной ипотекойРассрочка 0% от застройщика. Есть ограничения, подробности уточняйте в отделе продаж.Ипотека без удорожанияМатеринский капиталТрейд-инВоенная ипотекаIT-ипотекадома в районах с развитой инфраструктурой: с безопасными детскими площадками, парковками, зонами для спорта и отдыха, магазинами, кружками, детский сад и школа - в шаговой доступности, удобная планировка, в квартире никто не жил, продуманные и комфортные подъезды с колясочными, есть варианты с готовой отделкой в приятных светлых тонах и квартиры под отделку - оставляем пространство для вашей фантазии по дизайну квартиры, полностью прозрачная и безопасная сделка бесплатное юридическое сопровождение стоимость от застройщика без посредников
40 м2
9 / 9 этаж
Кирпич
  • Показать контакты
  • Добавить в избранное
40 м2
9 / 9 этаж
Кирпич
6 616 500 
165 000 /м2
Новостройка,
дом сдан
1/12
2-к, Капитана Дорофеева, 24 Показать на карте
Ленинский район
Киров
2-комнатная, 57.9 м², 283 по адресу Дорофеева, 24 Тип дома: Кирпич. Жилой комплекс ''Лайф''Преимущества покупки квартиры в новостройке напрямую от застройщика КСМ: Работаем с обновлённой семейной ипотекойРассрочка 0% от застройщика. Есть ограничения, подробности уточняйте в отделе продаж.Ипотека без удорожанияМатеринский капиталТрейд-инВоенная ипотекаIT-ипотекадома в районах с развитой инфраструктурой: с безопасными детскими площадками, парковками, зонами для спорта и отдыха, магазинами, кружками, детский сад и школа - в шаговой доступности, удобная планировка, в квартире никто не жил, продуманные и комфортные подъезды с колясочными, есть варианты с готовой отделкой в приятных светлых тонах и квартиры под отделку - оставляем пространство для вашей фантазии по дизайну квартиры, полностью прозрачная и безопасная сделка бесплатное юридическое сопровождение стоимость от застройщика без посредников
57 м2
12 / 12 этаж
Кирпич
  • Показать контакты
  • Добавить в избранное
57 м2
12 / 12 этаж
Кирпич
9 206 100 
159 000 /м2
Новостройка
1/2
2-к квартира Показать на карте
Ленинский район
Киров
2-комнатная, 56.9 м², 126 по адресу Чистопрудненская, 11 Тип дома: Утепленная панель. Микрорайон ''Чистые пруды''Преимущества покупки квартиры в новостройке напрямую от застройщика КСМ: Работаем с обновлённой семейной ипотекойРассрочка 0% от застройщика. Есть ограничения, подробности уточняйте в отделе продаж.Ипотека без удорожанияМатеринский капиталТрейд-инВоенная ипотекаИТ-ипотекадома в районах с развитой инфраструктурой: с безопасными детскими площадками, парковками, зонами для спорта и отдыха, магазинами, кружками, детский сад и школа - в шаговой доступности, удобная планировка, в квартире никто не жил, продуманные и комфортные подъезды с колясочными, есть варианты с готовой отделкой в приятных светлых тонах и квартиры под отделку - оставляем пространство для вашей фантазии по дизайну квартиры, полностью прозрачная и безопасная сделка бесплатное юридическое сопровождение стоимость от застройщика без посредников
56 м2
13 / 17 этаж
Бетонные блоки
  • Показать контакты
  • Добавить в избранное
56 м2
13 / 17 этаж
Бетонные блоки
6 714 200 
118 000 /м2
Новостройка,
III-2027
1/8
2-к, Мелькомбинатовский проезд, 3 Показать на карте
Ленинский район
Киров
2-комнатная, 48.8 м², 27 по адресу Мелькомбинатовский, 3 Тип дома: Монолит. Жилой комплекс ''Видный''Преимущества покупки квартиры в новостройке напрямую от застройщика КСМ: Работаем с обновлённой семейной ипотекойРассрочка 0% от застройщика. Есть ограничения, подробности уточняйте в отделе продаж.Ипотека без удорожанияМатеринский капиталТрейд-инВоенная ипотекаИТ-ипотекадома в районах с развитой инфраструктурой: с безопасными детскими площадками, парковками, зонами для спорта и отдыха, магазинами, кружками, детский сад и школа - в шаговой доступности, удобная планировка, в квартире никто не жил, продуманные и комфортные подъезды с колясочными, есть варианты с готовой отделкой в приятных светлых тонах и квартиры под отделку - оставляем пространство для вашей фантазии по дизайну квартиры, полностью прозрачная и безопасная сделка бесплатное юридическое сопровождение стоимость от застройщика без посредников
48 м2
4 / 17 этаж
Кирпич - монолит
  • Показать контакты
  • Добавить в избранное
48 м2
4 / 17 этаж
Кирпич - монолит
8 296 000 
170 000 /м2
Новостройка,
III-2027
1/6
2-к, Чистопрудненская, 13 Показать на карте
Ленинский район
Киров
2-комнатная, 49.7 м², 268 по адресу Чистопрудненская, д. 13 Тип дома: Каркас/кирпич. Микрорайон ''Чистые пруды''Преимущества покупки квартиры в новостройке напрямую от застройщика КСМ: Работаем с обновлённой семейной ипотекойРассрочка 0% от застройщика. Есть ограничения, подробности уточняйте в отделе продаж.Ипотека без удорожанияМатеринский капиталТрейд-инВоенная ипотекаИТ-ипотекадома в районах с развитой инфраструктурой: с безопасными детскими площадками, парковками, зонами для спорта и отдыха, магазинами, кружками, детский сад и школа - в шаговой доступности, удобная планировка, в квартире никто не жил, продуманные и комфортные подъезды с колясочными, есть варианты с готовой отделкой в приятных светлых тонах и квартиры под отделку - оставляем пространство для вашей фантазии по дизайну квартиры, полностью прозрачная и безопасная сделка бесплатное юридическое сопровождение стоимость от застройщика без посредников
49 м2
16 / 16 этаж
  • Показать контакты
  • Добавить в избранное
49 м2
16 / 16 этаж
7 544 460 
151 800 /м2
Новостройка,
III-2026
1/6
2-к, Чистопрудненская, 13 Показать на карте
Ленинский район
Киров
2-комнатная, 49.7 м², 218 по адресу Чистопрудненская, д. 13 Тип дома: Каркас/кирпич. Микрорайон ''Чистые пруды''Преимущества покупки квартиры в новостройке напрямую от застройщика КСМ: Работаем с обновлённой семейной ипотекойРассрочка 0% от застройщика. Есть ограничения, подробности уточняйте в отделе продаж.Ипотека без удорожанияМатеринский капиталТрейд-инВоенная ипотекаИТ-ипотекадома в районах с развитой инфраструктурой: с безопасными детскими площадками, парковками, зонами для спорта и отдыха, магазинами, кружками, детский сад и школа - в шаговой доступности, удобная планировка, в квартире никто не жил, продуманные и комфортные подъезды с колясочными, есть варианты с готовой отделкой в приятных светлых тонах и квартиры под отделку - оставляем пространство для вашей фантазии по дизайну квартиры, полностью прозрачная и безопасная сделка бесплатное юридическое сопровождение стоимость от застройщика без посредников
49 м2
11 / 16 этаж
  • Показать контакты
  • Добавить в избранное
49 м2
11 / 16 этаж
6 858 600 
138 000 /м2
Новостройка,
III-2026
1/6
2-к, Чистопрудненская, 13 Показать на карте
Ленинский район
Киров
2-комнатная, 43.3 м², 406 по адресу Чистопрудненская, д. 13 Тип дома: Каркас/кирпич. Микрорайон ''Чистые пруды''Преимущества покупки квартиры в новостройке напрямую от застройщика КСМ: Работаем с обновлённой семейной ипотекойРассрочка 0% от застройщика. Есть ограничения, подробности уточняйте в отделе продаж.Ипотека без удорожанияМатеринский капиталТрейд-инВоенная ипотекаИТ-ипотекадома в районах с развитой инфраструктурой: с безопасными детскими площадками, парковками, зонами для спорта и отдыха, магазинами, кружками, детский сад и школа - в шаговой доступности, удобная планировка, в квартире никто не жил, продуманные и комфортные подъезды с колясочными, есть варианты с готовой отделкой в приятных светлых тонах и квартиры под отделку - оставляем пространство для вашей фантазии по дизайну квартиры, полностью прозрачная и безопасная сделка бесплатное юридическое сопровождение стоимость от застройщика без посредников
43 м2
14 / 16 этаж
  • Показать контакты
  • Добавить в избранное
43 м2
14 / 16 этаж
6 495 000 
150 000 /м2
Новостройка,
III-2026
1/6
2-к, Чистопрудненская, 13 Показать на карте
Ленинский район
Киров
2-комнатная, 70 м², 298 по адресу Чистопрудненская, д. 13 Тип дома: Каркас/кирпич. Микрорайон ''Чистые пруды''Преимущества покупки квартиры в новостройке напрямую от застройщика КСМ: Работаем с обновлённой семейной ипотекойРассрочка 0% от застройщика. Есть ограничения, подробности уточняйте в отделе продаж.Ипотека без удорожанияМатеринский капиталТрейд-инВоенная ипотекаИТ-ипотекадома в районах с развитой инфраструктурой: с безопасными детскими площадками, парковками, зонами для спорта и отдыха, магазинами, кружками, детский сад и школа - в шаговой доступности, удобная планировка, в квартире никто не жил, продуманные и комфортные подъезды с колясочными, есть варианты с готовой отделкой в приятных светлых тонах и квартиры под отделку - оставляем пространство для вашей фантазии по дизайну квартиры, полностью прозрачная и безопасная сделка бесплатное юридическое сопровождение стоимость от застройщика без посредников
70 м2
3 / 16 этаж
  • Показать контакты
  • Добавить в избранное
70 м2
3 / 16 этаж
8 470 000 
121 000 /м2
Новостройка,
III-2026
1/6
2-к, Чистопрудненская, 13 Показать на карте
Ленинский район
Киров
2-комнатная, 62.5 м², 232 по адресу Чистопрудненская, д. 13 Тип дома: Каркас/кирпич. Микрорайон ''Чистые пруды''Преимущества покупки квартиры в новостройке напрямую от застройщика КСМ: Работаем с обновлённой семейной ипотекойРассрочка 0% от застройщика. Есть ограничения, подробности уточняйте в отделе продаж.Ипотека без удорожанияМатеринский капиталТрейд-инВоенная ипотекаИТ-ипотекадома в районах с развитой инфраструктурой: с безопасными детскими площадками, парковками, зонами для спорта и отдыха, магазинами, кружками, детский сад и школа - в шаговой доступности, удобная планировка, в квартире никто не жил, продуманные и комфортные подъезды с колясочными, есть варианты с готовой отделкой в приятных светлых тонах и квартиры под отделку - оставляем пространство для вашей фантазии по дизайну квартиры, полностью прозрачная и безопасная сделка бесплатное юридическое сопровождение стоимость от застройщика без посредников
62 м2
12 / 16 этаж
  • Показать контакты
  • Добавить в избранное
62 м2
12 / 16 этаж
8 812 500 
141 000 /м2
Новостройка,
III-2026
1/6
2-к, Чистопрудненская, 13 Показать на карте
Ленинский район
Киров
2-комнатная, 65.3 м², 274 по адресу Чистопрудненская, д. 13 Тип дома: Каркас/кирпич. Микрорайон ''Чистые пруды''Преимущества покупки квартиры в новостройке напрямую от застройщика КСМ: Работаем с обновлённой семейной ипотекойРассрочка 0% от застройщика. Есть ограничения, подробности уточняйте в отделе продаж.Ипотека без удорожанияМатеринский капиталТрейд-инВоенная ипотекаИТ-ипотекадома в районах с развитой инфраструктурой: с безопасными детскими площадками, парковками, зонами для спорта и отдыха, магазинами, кружками, детский сад и школа - в шаговой доступности, удобная планировка, в квартире никто не жил, продуманные и комфортные подъезды с колясочными, есть варианты с готовой отделкой в приятных светлых тонах и квартиры под отделку - оставляем пространство для вашей фантазии по дизайну квартиры, полностью прозрачная и безопасная сделка бесплатное юридическое сопровождение стоимость от застройщика без посредников
65 м2
1 / 16 этаж
  • Показать контакты
  • Добавить в избранное
65 м2
1 / 16 этаж
9 076 700 
139 000 /м2
Новостройка,
III-2026
1/6
2-к, Чистопрудненская, 13 Показать на карте
Ленинский район
Киров
2-комнатная, 70.2 м², 358 по адресу Чистопрудненская, д. 13 Тип дома: Каркас/кирпич. Микрорайон ''Чистые пруды''Преимущества покупки квартиры в новостройке напрямую от застройщика КСМ: Работаем с обновлённой семейной ипотекойРассрочка 0% от застройщика. Есть ограничения, подробности уточняйте в отделе продаж.Ипотека без удорожанияМатеринский капиталТрейд-инВоенная ипотекаИТ-ипотекадома в районах с развитой инфраструктурой: с безопасными детскими площадками, парковками, зонами для спорта и отдыха, магазинами, кружками, детский сад и школа - в шаговой доступности, удобная планировка, в квартире никто не жил, продуманные и комфортные подъезды с колясочными, есть варианты с готовой отделкой в приятных светлых тонах и квартиры под отделку - оставляем пространство для вашей фантазии по дизайну квартиры, полностью прозрачная и безопасная сделка бесплатное юридическое сопровождение стоимость от застройщика без посредников
70 м2
9 / 16 этаж
  • Показать контакты
  • Добавить в избранное
70 м2
9 / 16 этаж
8 564 400 
122 000 /м2
Новостройка,
III-2026
1/6
2-к, Чистопрудненская, 13 Показать на карте
Ленинский район
Киров
2-комнатная, 49.9 м², 97 по адресу Чистопрудненская, д. 13 Тип дома: Каркас/кирпич. Микрорайон ''Чистые пруды''Преимущества покупки квартиры в новостройке напрямую от застройщика КСМ: Работаем с обновлённой семейной ипотекойРассрочка 0% от застройщика. Есть ограничения, подробности уточняйте в отделе продаж.Ипотека без удорожанияМатеринский капиталТрейд-инВоенная ипотекаИТ-ипотекадома в районах с развитой инфраструктурой: с безопасными детскими площадками, парковками, зонами для спорта и отдыха, магазинами, кружками, детский сад и школа - в шаговой доступности, удобная планировка, в квартире никто не жил, продуманные и комфортные подъезды с колясочными, есть варианты с готовой отделкой в приятных светлых тонах и квартиры под отделку - оставляем пространство для вашей фантазии по дизайну квартиры, полностью прозрачная и безопасная сделка бесплатное юридическое сопровождение стоимость от застройщика без посредников
49 м2
11 / 16 этаж
  • Показать контакты
  • Добавить в избранное
49 м2
11 / 16 этаж
7 734 500 
155 000 /м2
Новостройка,
III-2026
1/6
2-к, Чистопрудненская, 13 Показать на карте
Ленинский район
Киров
2-комнатная, 43.3 м², 416 по адресу Чистопрудненская, д. 13 Тип дома: Каркас/кирпич. Микрорайон ''Чистые пруды''Преимущества покупки квартиры в новостройке напрямую от застройщика КСМ: Работаем с обновлённой семейной ипотекойРассрочка 0% от застройщика. Есть ограничения, подробности уточняйте в отделе продаж.Ипотека без удорожанияМатеринский капиталТрейд-инВоенная ипотекаИТ-ипотекадома в районах с развитой инфраструктурой: с безопасными детскими площадками, парковками, зонами для спорта и отдыха, магазинами, кружками, детский сад и школа - в шаговой доступности, удобная планировка, в квартире никто не жил, продуманные и комфортные подъезды с колясочными, есть варианты с готовой отделкой в приятных светлых тонах и квартиры под отделку - оставляем пространство для вашей фантазии по дизайну квартиры, полностью прозрачная и безопасная сделка бесплатное юридическое сопровождение стоимость от застройщика без посредников
43 м2
15 / 16 этаж
  • Показать контакты
  • Добавить в избранное
43 м2
15 / 16 этаж
6 495 000 
150 000 /м2
Новостройка,
III-2026
1/2
2-к квартира Показать на карте
Ленинский район
Киров
2-комнатная, 45.6 м², 50 по адресу Чистопрудненская, 11 Тип дома: Утепленная панель. Микрорайон ''Чистые пруды''Преимущества покупки квартиры в новостройке напрямую от застройщика КСМ: Работаем с обновлённой семейной ипотекойРассрочка 0% от застройщика. Есть ограничения, подробности уточняйте в отделе продаж.Ипотека без удорожанияМатеринский капиталТрейд-инВоенная ипотекаИТ-ипотекадома в районах с развитой инфраструктурой: с безопасными детскими площадками, парковками, зонами для спорта и отдыха, магазинами, кружками, детский сад и школа - в шаговой доступности, удобная планировка, в квартире никто не жил, продуманные и комфортные подъезды с колясочными, есть варианты с готовой отделкой в приятных светлых тонах и квартиры под отделку - оставляем пространство для вашей фантазии по дизайну квартиры, полностью прозрачная и безопасная сделка бесплатное юридическое сопровождение стоимость от застройщика без посредников
45 м2
6 / 17 этаж
Бетонные блоки
  • Показать контакты
  • Добавить в избранное
45 м2
6 / 17 этаж
Бетонные блоки
5 517 600 
121 000 /м2
Новостройка,
III-2027
1/2
2-к квартира Показать на карте
Ленинский район
Киров
2-комнатная, 45.6 м², 10 по адресу Чистопрудненская, 11 Тип дома: Утепленная панель. Микрорайон ''Чистые пруды''Преимущества покупки квартиры в новостройке напрямую от застройщика КСМ: Работаем с обновлённой семейной ипотекойРассрочка 0% от застройщика. Есть ограничения, подробности уточняйте в отделе продаж.Ипотека без удорожанияМатеринский капиталТрейд-инВоенная ипотекаИТ-ипотекадома в районах с развитой инфраструктурой: с безопасными детскими площадками, парковками, зонами для спорта и отдыха, магазинами, кружками, детский сад и школа - в шаговой доступности, удобная планировка, в квартире никто не жил, продуманные и комфортные подъезды с колясочными, есть варианты с готовой отделкой в приятных светлых тонах и квартиры под отделку - оставляем пространство для вашей фантазии по дизайну квартиры, полностью прозрачная и безопасная сделка бесплатное юридическое сопровождение стоимость от застройщика без посредников
45 м2
2 / 17 этаж
Бетонные блоки
  • Показать контакты
  • Добавить в избранное
45 м2
2 / 17 этаж
Бетонные блоки
5 472 000 
120 000 /м2
Новостройка,
III-2027
1/6
2-к, Чистопрудненская, 13 Показать на карте
Ленинский район
Киров
2-комнатная, 49.8 м², 340 по адресу Чистопрудненская, д. 13 Тип дома: Каркас/кирпич. Микрорайон ''Чистые пруды''Преимущества покупки квартиры в новостройке напрямую от застройщика КСМ: Работаем с обновлённой семейной ипотекойРассрочка 0% от застройщика. Есть ограничения, подробности уточняйте в отделе продаж.Ипотека без удорожанияМатеринский капиталТрейд-инВоенная ипотекаИТ-ипотекадома в районах с развитой инфраструктурой: с безопасными детскими площадками, парковками, зонами для спорта и отдыха, магазинами, кружками, детский сад и школа - в шаговой доступности, удобная планировка, в квартире никто не жил, продуманные и комфортные подъезды с колясочными, есть варианты с готовой отделкой в приятных светлых тонах и квартиры под отделку - оставляем пространство для вашей фантазии по дизайну квартиры, полностью прозрачная и безопасная сделка бесплатное юридическое сопровождение стоимость от застройщика без посредников
49 м2
7 / 16 этаж
  • Показать контакты
  • Добавить в избранное
49 м2
7 / 16 этаж
7 669 200 
154 000 /м2
Новостройка,
III-2026
1/6
2-к, Чистопрудненская, 13 Показать на карте
Ленинский район
Киров
2-комнатная, 49.9 м², 420 по адресу Чистопрудненская, д. 13 Тип дома: Каркас/кирпич. Микрорайон ''Чистые пруды''Преимущества покупки квартиры в новостройке напрямую от застройщика КСМ: Работаем с обновлённой семейной ипотекойРассрочка 0% от застройщика. Есть ограничения, подробности уточняйте в отделе продаж.Ипотека без удорожанияМатеринский капиталТрейд-инВоенная ипотекаИТ-ипотекадома в районах с развитой инфраструктурой: с безопасными детскими площадками, парковками, зонами для спорта и отдыха, магазинами, кружками, детский сад и школа - в шаговой доступности, удобная планировка, в квартире никто не жил, продуманные и комфортные подъезды с колясочными, есть варианты с готовой отделкой в приятных светлых тонах и квартиры под отделку - оставляем пространство для вашей фантазии по дизайну квартиры, полностью прозрачная и безопасная сделка бесплатное юридическое сопровождение стоимость от застройщика без посредников
49 м2
15 / 16 этаж
  • Показать контакты
  • Добавить в избранное
49 м2
15 / 16 этаж
7 734 500 
155 000 /м2
Новостройка,
III-2026
1/6
2-к, Чистопрудненская, 13 Показать на карте
Ленинский район
Киров
2-комнатная, 62.5 м², 212 по адресу Чистопрудненская, д. 13 Тип дома: Каркас/кирпич. Микрорайон ''Чистые пруды''Преимущества покупки квартиры в новостройке напрямую от застройщика КСМ: Работаем с обновлённой семейной ипотекойРассрочка 0% от застройщика. Есть ограничения, подробности уточняйте в отделе продаж.Ипотека без удорожанияМатеринский капиталТрейд-инВоенная ипотекаИТ-ипотекадома в районах с развитой инфраструктурой: с безопасными детскими площадками, парковками, зонами для спорта и отдыха, магазинами, кружками, детский сад и школа - в шаговой доступности, удобная планировка, в квартире никто не жил, продуманные и комфортные подъезды с колясочными, есть варианты с готовой отделкой в приятных светлых тонах и квартиры под отделку - оставляем пространство для вашей фантазии по дизайну квартиры, полностью прозрачная и безопасная сделка бесплатное юридическое сопровождение стоимость от застройщика без посредников
62 м2
10 / 16 этаж
  • Показать контакты
  • Добавить в избранное
62 м2
10 / 16 этаж
8 750 000 
140 000 /м2
Новостройка,
III-2026
1/6
2-к, Чистопрудненская, 13 Показать на карте
Ленинский район
Киров
2-комнатная, 70.1 м², 428 по адресу Чистопрудненская, д. 13 Тип дома: Каркас/кирпич. Микрорайон ''Чистые пруды''Преимущества покупки квартиры в новостройке напрямую от застройщика КСМ: Работаем с обновлённой семейной ипотекойРассрочка 0% от застройщика. Есть ограничения, подробности уточняйте в отделе продаж.Ипотека без удорожанияМатеринский капиталТрейд-инВоенная ипотекаИТ-ипотекадома в районах с развитой инфраструктурой: с безопасными детскими площадками, парковками, зонами для спорта и отдыха, магазинами, кружками, детский сад и школа - в шаговой доступности, удобная планировка, в квартире никто не жил, продуманные и комфортные подъезды с колясочными, есть варианты с готовой отделкой в приятных светлых тонах и квартиры под отделку - оставляем пространство для вашей фантазии по дизайну квартиры, полностью прозрачная и безопасная сделка бесплатное юридическое сопровождение стоимость от застройщика без посредников
70 м2
16 / 16 этаж
  • Показать контакты
  • Добавить в избранное
70 м2
16 / 16 этаж
9 484 530 
135 300 /м2
Новостройка,
III-2026
1/6
2-к, Чистопрудненская, 13 Показать на карте
Ленинский район
Киров
2-комнатная, 70.1 м², 418 по адресу Чистопрудненская, д. 13 Тип дома: Каркас/кирпич. Микрорайон ''Чистые пруды''Преимущества покупки квартиры в новостройке напрямую от застройщика КСМ: Работаем с обновлённой семейной ипотекойРассрочка 0% от застройщика. Есть ограничения, подробности уточняйте в отделе продаж.Ипотека без удорожанияМатеринский капиталТрейд-инВоенная ипотекаИТ-ипотекадома в районах с развитой инфраструктурой: с безопасными детскими площадками, парковками, зонами для спорта и отдыха, магазинами, кружками, детский сад и школа - в шаговой доступности, удобная планировка, в квартире никто не жил, продуманные и комфортные подъезды с колясочными, есть варианты с готовой отделкой в приятных светлых тонах и квартиры под отделку - оставляем пространство для вашей фантазии по дизайну квартиры, полностью прозрачная и безопасная сделка бесплатное юридическое сопровождение стоимость от застройщика без посредников
70 м2
15 / 16 этаж
  • Показать контакты
  • Добавить в избранное
70 м2
15 / 16 этаж
8 622 300 
123 000 /м2
Новостройка,
III-2026
1/11
2-к, Мелькомбинатовский проезд, 3 Показать на карте
Ленинский район
Киров
2-комнатная, 58.7 м², 146 по адресу Мелькомбинатовский, 3 Тип дома: Монолит. Жилой комплекс ''Видный''Преимущества покупки квартиры в новостройке напрямую от застройщика КСМ: Работаем с обновлённой семейной ипотекойРассрочка 0% от застройщика. Есть ограничения, подробности уточняйте в отделе продаж.Ипотека без удорожанияМатеринский капиталТрейд-инВоенная ипотекаИТ-ипотекадома в районах с развитой инфраструктурой: с безопасными детскими площадками, парковками, зонами для спорта и отдыха, магазинами, кружками, детский сад и школа - в шаговой доступности, удобная планировка, в квартире никто не жил, продуманные и комфортные подъезды с колясочными, есть варианты с готовой отделкой в приятных светлых тонах и квартиры под отделку - оставляем пространство для вашей фантазии по дизайну квартиры, полностью прозрачная и безопасная сделка бесплатное юридическое сопровождение стоимость от застройщика без посредников
58 м2
2 / 17 этаж
Кирпич - монолит
  • Показать контакты
  • Добавить в избранное
58 м2
2 / 17 этаж
Кирпич - монолит
9 392 000 
160 000 /м2
Новостройка,
III-2027
1/12
2-к, Капитана Дорофеева, 24 Показать на карте
Ленинский район
Киров
2-комнатная, 80.3 м², 57 по адресу Дорофеева, 24 Тип дома: Кирпич. Жилой комплекс ''Лайф''Преимущества покупки квартиры в новостройке напрямую от застройщика КСМ: Работаем с обновлённой семейной ипотекойРассрочка 0% от застройщика. Есть ограничения, подробности уточняйте в отделе продаж.Ипотека без удорожанияМатеринский капиталТрейд-инВоенная ипотекаИТ-ипотекадома в районах с развитой инфраструктурой: с безопасными детскими площадками, парковками, зонами для спорта и отдыха, магазинами, кружками, детский сад и школа - в шаговой доступности, удобная планировка, в квартире никто не жил, продуманные и комфортные подъезды с колясочными, есть варианты с готовой отделкой в приятных светлых тонах и квартиры под отделку - оставляем пространство для вашей фантазии по дизайну квартиры, полностью прозрачная и безопасная сделка бесплатное юридическое сопровождение стоимость от застройщика без посредников
80 м2
10 / 12 этаж
Кирпич
  • Показать контакты
  • Добавить в избранное
80 м2
10 / 12 этаж
Кирпич
9 555 700 
119 000 /м2
Новостройка
1/8
2-к, Мелькомбинатовский проезд, 3 Показать на карте
Ленинский район
Киров
2-комнатная, 48.6 м², 9 по адресу Мелькомбинатовский, 3 Тип дома: Монолит. Жилой комплекс ''Видный''Преимущества покупки квартиры в новостройке напрямую от застройщика КСМ: Работаем с обновлённой семейной ипотекойРассрочка 0% от застройщика. Есть ограничения, подробности уточняйте в отделе продаж.Ипотека без удорожанияМатеринский капиталТрейд-инВоенная ипотекаИТ-ипотекадома в районах с развитой инфраструктурой: с безопасными детскими площадками, парковками, зонами для спорта и отдыха, магазинами, кружками, детский сад и школа - в шаговой доступности, удобная планировка, в квартире никто не жил, продуманные и комфортные подъезды с колясочными, есть варианты с готовой отделкой в приятных светлых тонах и квартиры под отделку - оставляем пространство для вашей фантазии по дизайну квартиры, полностью прозрачная и безопасная сделка бесплатное юридическое сопровождение стоимость от застройщика без посредников
48 м2
2 / 17 этаж
Кирпич - монолит
  • Показать контакты
  • Добавить в избранное
48 м2
2 / 17 этаж
Кирпич - монолит
8 262 000 
170 000 /м2
Новостройка,
III-2027
1/4
2-к, Мелькомбинатовский проезд, 3 Показать на карте
Ленинский район
Киров
2-комнатная, 42.2 м², 141 по адресу Мелькомбинатовский, 3 Тип дома: Монолит. Жилой комплекс ''Видный''Преимущества покупки квартиры в новостройке напрямую от застройщика КСМ: Работаем с обновлённой семейной ипотекойРассрочка 0% от застройщика. Есть ограничения, подробности уточняйте в отделе продаж.Ипотека без удорожанияМатеринский капиталТрейд-инВоенная ипотекаИТ-ипотекадома в районах с развитой инфраструктурой: с безопасными детскими площадками, парковками, зонами для спорта и отдыха, магазинами, кружками, детский сад и школа - в шаговой доступности, удобная планировка, в квартире никто не жил, продуманные и комфортные подъезды с колясочными, есть варианты с готовой отделкой в приятных светлых тонах и квартиры под отделку - оставляем пространство для вашей фантазии по дизайну квартиры, полностью прозрачная и безопасная сделка бесплатное юридическое сопровождение стоимость от застройщика без посредников
42 м2
17 / 17 этаж
Кирпич - монолит
  • Показать контакты
  • Добавить в избранное
42 м2
17 / 17 этаж
Кирпич - монолит
8 355 600 
198 000 /м2
Новостройка,
III-2027
  • 1
  • 2
  • 3
  • 4
  • 5
  • Следующая
Распечатать

Вместе с этим также ищут:

Продажа квартир в Кирове Продажа однокомнатных квартир в Кирове Продажа комнат в Кирове Продажа гаражей в Кирове Продажа вторички - квартиры в Кирове Квартиры в новостройках в Кирове

🏠 Как купить двухкомнатную квартиру в Кирове на N1?

  • ✔ В поисках объявления о продаже или покупке квартир в Кирове?
  • ✔ На N1 размещены 224 квартиры
  • ✔ Чтобы купить или продать недвижимость, воспользуйтесь формой поиска, фильтрами или быстрыми ссылками.

💸 Сколько стоит двухкомнатная квартира в Кирове?

  • 🟢 Средняя цена продажи двухкомнатных квартир - 7,26 млн ₽
  • 🟢 Минимальная стоимость за 1 м2: 145,65 тыс ₽

📚 Какая площадь двухкомнатных квартир?

  • Наибольшая площадь: 84 м²
  • Минимальная площадь: 34 м²